Spring Valley Village 2-story, 3-bed 1230 Krist Drive-idx
Off Market

1230 Krist DriveSpring Valley Village, 77055

Home Summary

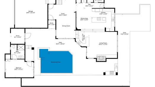
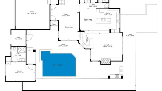
Stunning custom-built home in Spring Valley Village with ravine views, pool, and guest quarters.

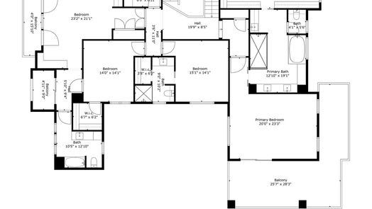
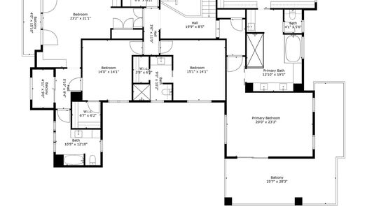
3 beds
4.5 baths
2-car
2-story
12,175 sqft lot
built in 2016

Property Type: Residential, Detached

Style: Contemporary Modern

Discover elegance in this stunning custom-built residence, located in the heart of Spring Valley Village. This architectural gem offers spectacular views of the lush ravine. As you enter you'll be greeted by a charming courtyard featuring a sparkling salt water pool and relaxing hot tub. A separate casita provides wonderful private guest quarters. Step inside the main house to experience a space designed for both sophistication and functionality. The open concept Kitchen and Living areas are highlighted with ravine views. Custom built cabinetry throughout. The upper level offers a luxurious owners retreat, 2 guest bedrooms and 2 baths and game room. Spring Valley Village has its own police department and City Park. Three Bedrooms in main house and Guest Bedroom Suite Castia. This section of Spring Valley has a pedestrian bridge leading to the elementary school. Zoned to Valley Oaks Elementary, Spring Branch Middle, and Memorial High!

3 up

Game Room, Bonus Room, Living Room

Private Pool: Gunite, In Ground, Salt Water

Lot & Location: Ravine

MLS #298714786Taylor Real Estate Group, Inc.