








Off Market
18239 Via Aurelia DriveNew Caney, 77357
Home Summary
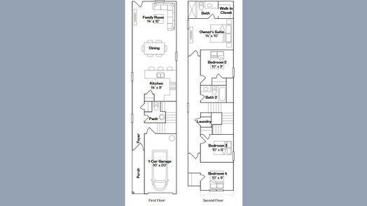
Modern two-story home with a cozy kitchen, private bedrooms, and a welcoming living area.
1,530 sqft
4 beds
2.5 baths
1-car
2-story
built in 2024
Schedule a tour
Get more info
Property Type: Residential, Detached
Style: Traditional
NEW! Lennar Homes Wellton Collection, ''Cibola'' Plan with Elevation ''D" in Beautiful Tavola West! The first floor of this new two-story home showcases a well-equipped kitchen overlooking a cozy dining area for intimate meals and a living room ideal for entertainment. Perfectly situated upstairs to afford residents maximum privacy from the communal living spaces, there is a total of four bedrooms. The owner’s suite is comprised of a large bedroom, an attached bathroom and walk-in closet.
4 up
Family Room
Lot & Location: Subdivision
MLS #301336083Lennar Homes Village Builders, LLC
New Caney Homes
More from New Caney