2010 Groveland Glen DriveHouston, 77045
Home Summary
Spacious 3 bed, 3.5 bath home in Kirby Landing. Gourmet kitchen, walk-in closets, and gated community.
Property Type: Residential, Detached
Style: Contemporary Modern
School Zones
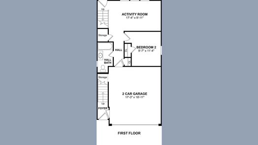
The Radcliffe II floor plan offers a spacious, unique and open concept design that is sure to welcome you after a long day. The first floor features a bedroom, bath and activity room, perfect for guests. Beautiful maple cabinets, quartz countertops and farmhouse sink in gourmet kitchen. Both 3rd floor bedrooms have walk-in closets and en-suite baths. Double sinks, separate tub and shower in owner's bath. Kirby Landing is a privately gated community with easy access to HWY 288 and conveniently located only minutes from Downtown Houston and The Medical Center. Amenities include a centralized walking trail and a gated fun area for four legged friends. Offered by: K. Hovnanian Houston III, L.L.C.
Island Kitchen, Open to Family Room, Quartz Counters
3 up
Family Room, Game Room
Lot & Location: Subdivision
Exterior: Fence, Private Yard



























Kirby Landing Homes
Modern new construction in a gated community, featuring an inviting open layout and gourmet kitchen.