








































14009 Memorial Reserve PlaceHouston, 77079
Home Summary
New construction 3-bed, 3.5-bath home with open-concept living, large flex space, and 2-car garage.
Property Type: Residential, Detached
Style: Traditional
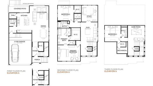
The Upton is filled with coveted features like an open-concept dining area, living room, and kitchen, a covered patio on the main floor, and a large flex space that can be used as a workout area or media room. This 3-bedroom, 3.5-bathroom home features 2,878 sqft. of living space and a 2-car garage to accommodate families with multiple vehicles. Each bedroom features a walk-in closet and bathroom, but the primary suite is particularly unique with its dedicated seating area, dual-sink ensuite, and extensive storage space. The home also features a study that residents can use to complete school work or read their favorite novels as they indulge in some self-care. On the third and final floor is a third bedroom and large game room — the perfect space to host guests and entertain.
Island Kitchen
3 up
Living Room, Bonus Room, Game Room
Lot & Location: Subdivision
Exterior: Balcony, Porch
Porch & Patio: Covered Patio, Balcony, Covered, Deck, Porch