








Off Market
18695 San Salvo DriveNew Caney, 77357
Home Summary
New construction 2-story home in Tavola West with open concept living area and owner's suite.
1,013 sqft
2 beds
2.5 baths
1-car
2-story
built in 2024
Schedule a tour
Get more info
Property Type: Residential, Detached
Style: Traditional
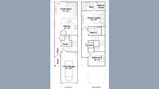
NEW! Lennar Homes Wellton Collection, ''Kofa'' Plan with Elevation ''C" in Beautiful Tavola West! In this terrific new home, an open concept living area is in the back of the first floor with a modern kitchen and family room. Upstairs, a room is situated at the front of the home, perfect for a secondary bedroom or home office. The owner’s suite is tucked into the back with a full bathroom and walk-in closet.
2 up
Family Room
Lot & Location: Subdivision
MLS #293346210Lennar Homes Village Builders, LLC
New Caney Homes
More from New Caney