












































54 Mahogany CourtLake Jackson, 77566
Home Summary
Bright and inviting home with a private pool, perfect for relaxation and entertaining.
Property Type: Residential, Detached
Style: Traditional
School Zones
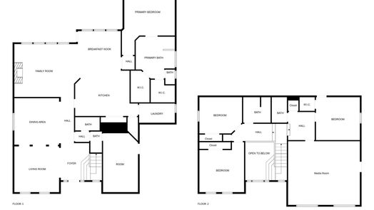
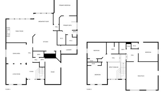
This spacious and inviting home boasts a perfect blend of comfort and luxury. As you step inside, you're greeted by an abundance of natural light. The kitchen has ample counter space, and a convenient breakfast bar/dining area. The screened pool area beckons for endless hours of relaxation and enjoyment. Take a refreshing dip in the pool, soak up the sun on the deck, or unwind in the shade, the choice is yours. The primary suite is complete with a ensuite bath and two spacious walk-in closets. With 4 bedrooms and 4 baths, there's plenty of space for everyone. Media room upstairs and a flex room downstairs. Whether you're seeking a peaceful sanctuary or an entertainer's dream, this home offers the best of both worlds. Located on a quiet street yet just minutes away from shopping, dining, and top-rated schools, this is the opportunity you've been waiting for. Don't miss your chance to make this dream home yours - schedule a showing today!
Breakfast Bar, Island Kitchen, Open to Family Room
1 down, 3 up
Spa, Soaking Tub
Family Room, Living Room
Private Pool: Gunite, Heated, In Ground, Screen Enclosure
Lot & Location: Cul De Sac, Subdivision
Exterior: Enclosed Porch, Fence, Hot Tub Spa
Porch & Patio: Porch, Screened