Southside Place 4-story, 4-bed 75 Crain Square Boulevard-idx
Off Market

75 Crain Square BoulevardSouthside Place, 77025

Home Summary

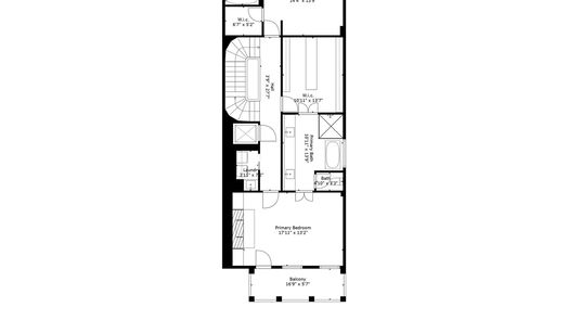
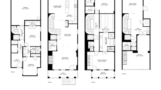
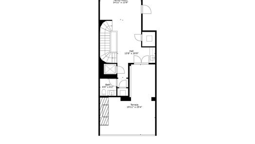
Sophisticated townhouse in Crain Square with 4 bedrooms, 3 full bathrooms, 2-car garage, and elevator.

3,996 sqft
4 beds
4 baths
2-car
4-story
1,832 sqft lot
built in 2017

Property Type: Residential, Townhouse

Style: Traditional

Exceptional gated townhome community nestled in the heart of coveted City of Southside Place, Crain Square boasts: classic residences featuring Southern Traditional Architecture, brick paved walks, classic front porches, gas lanterns, manicured gardens, fountains, dog park & acres of green space. 75 Crain Square sits in the most desirable section on ‘The Green’ with expansive lawn & tranquil fountain. Once inside you feel the elegance of 11’ ceilings, balconies/terraces to all levels add 866 sqft, 3 gaslog fireplaces, stunning owner upgrades, custom ELEVATOR to all levels. As a Southside Place resident you have the peace of mind with Police and Fire departments, access to Park with tennis, pool/playground yet minutes from Texas Medical Center, Rice University, Rice Village & Downtown. Excellent public and private schools surround this community (buyer to verify eligibility). Come experience 75 Crain Sq & fall in love with sophisticated lock & leave lifestyle. *per Seller

Breakfast Bar, Granite Counters, Island Kitchen, Quartz Counters

2 down, 2 up

Soaking Tub, Vanity

Game Room, Living Room

Exterior: Balcony, Deck, Fence, Sprinkler Irrigation, Play Structure, Storage, Tennis Courts

Porch & Patio: Outdoor Kitchen, Patio, Balcony, Deck

View: North, Southern Exposure

MLS #281235091Greenwood King Properties - Kirby Office