Houston 2-story, 4-bed 12407 Duggan Drive-idx
Off Market

12407 Duggan DriveHouston, 77034

Home Summary

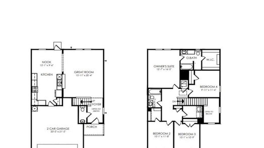
New construction 4-bed, 2.5-bath home in Clearwick with 2-car garage and spacious living area.

1,814 sqft
4 beds
2.5 baths
2-car
2-story
3,780 sqft lot
built in 2023

Property Type: Residential, Detached

Style: Traditional

April Move In! The Springfield by Centex is just like the Model Floor Plan. Welcome home to a 2-story foyer that takes you to the large living room. The kitchen has 42"White cabinets with hardware, and stainless-steel Whirlpool appliances such as a 5-burner gas stove, built-in microwave, and dishwasher. The home also includes a Refrigerator, Washer, and Dryer. The upstairs consists of 4 bedrooms, and 2.5 bathrooms, and the laundry room is conveniently located next to the bedrooms. Enjoy this versatile floorplan at Clearwick, conveniently located near Fuqua and I-45.

Granite Counters

4 up

Family Room

Lot & Location: Corner Lot, Subdivision

Exterior: Fence

MLS #282805780Pulte Homes