Off Market

6519 Woodleaf Lake LoopKaty, 77493

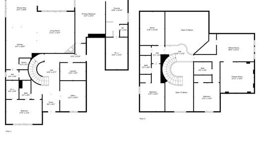
Home Summary

Stunning 4 bed, 4 bath home in Elyson with resort-style backyard oasis and lake views.

4,432 sqft
4 beds
4 baths
3-car
2-story
10,561 sqft lot
built in 2019

Property Type: Residential, Detached

Style: Traditional

Major Market:
North Katy
Local Market:
North Katy
School District:
Katy ISD

School Zones

Welcome to this stunning residence in the highly sought-after master-planned community of Elyson. This luxurious Darling home features 4/5 bedrooms and 4 full bathrooms A Study, A Hearth Room, A Game room & Media room. This home has a secondary bedroom on the first floor, ideal for guests or multi-generational living. The heart of the home is the expansive kitchen, complete with a butler’s pantry and study Nook which is open to the family room, where a customized 200-gallon freshwater fish tank (included in the home) adds a unique touch of tranquility. Step outside to discover a resort-style backyard oasis featuring a sparkling pool, hot tub, outdoor kitchen, pergola, seating area, and gas fireplace. Enjoy breathtaking lake views and proximity to the Elyson community center, making this home an entertainer’s dream and a serene retreat. Please see the attachment for items sold separately.

Granite Counters, Island Kitchen, Open to Family Room

2 down, 2 up

Soaking Tub, Vanity

Bonus Room, Game Room, Living Room

Private Pool: Gunite, Heated, In Ground

Lot & Location: Subdivision, Views

Exterior: Hot Tub Spa, Tennis Courts

Porch & Patio: Covered Patio, Outdoor Kitchen, Covered, Deck

View: Lake, Water

MLS #295162525eXp Realty LLC
Katy 2-story, 4-bed 6519 Woodleaf Lake Loop-idx