


















































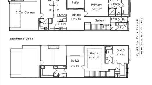
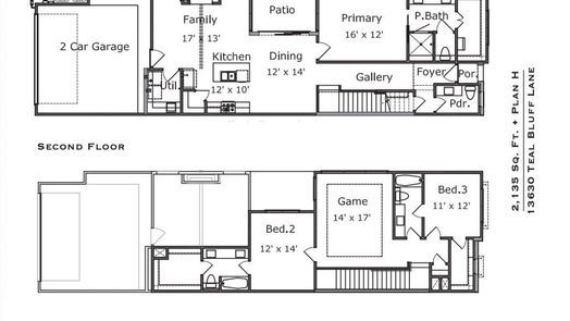
13630 Teal Bluff LaneHouston, 77077
Home Summary
Luxury living in West Houston with 3 bedrooms, game room, designer fixtures, and top-of-the-line appliances.
Property Type: Residential, Detached
Style: Contemporary Modern,Traditional
Welcome to the exclusive City Villas at The Parkway at Eldridge, a luxury living concept in the Energy Corridor. Built by Kickerillo, a Houston premier custom home builder. This modern home features 3 bedrooms, 3.5 baths, a game room, designer fixtures, top-of-the-line appliances, luxury wood floors, and a clay tile roof. Experience a lock-and-leave lifestyle with a cozy courtyard for morning relaxation. The community offers 24-hour manned gate security, tennis courts, playground, and a state-of-the-art swimming pool. This like-new home is move-in ready, waiting for you to experience upscale living in West Houston
Open to Family Room
1 down, 2 up
Game Room, Family Room
Lot & Location: Subdivision
Exterior: Sprinkler Irrigation