


















2806 Iris Valley WayHouston, 77038
Home Summary
Move-In Ready 4 bed, 2.5 bath home with updated kitchen, spacious primary suite, and game room.
Property Type: Residential, Detached
Style: Traditional
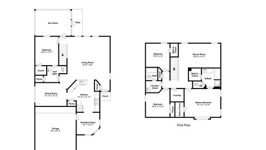
Stunning 2-story in the heart of Maple Ridge Place! Home is Move-In Ready & includes the following updates. Full Exterior & Interior Paint including the Garage. NEW LVP Flooring in living, dining, kitchen, breakfast & all baths. NEW Carpet in all bedrooms & gameroom. NEW Granite in Kitchen & All Baths including a new Mosaic Tile Backsplash in Kitchen. NEW Stainless Steel Appliances including a NEW Gas Range, NEW Microwave & NEW Dishwasher. Charming 4 bedroom, 2.5 bath featuring an open floor plan downstairs with a spacious family room open to the updated kitchen & breakfast room. Formal dining room could be used as a home office, den or playroom. One bedroom downstairs. The spacious primary suite features an ensutie bath with large soaking tub & separate shower plus two walk-in closets! The primary suite shares the 2nd floor w/ 2 additional bedrooms, hall bath & a massive gameroom. Home is within walking distance to the neighborhood park and minutes away from Beltway 8 & I-45.
Granite Counters, Open to Family Room
1 down, 3 up
Game Room, Living Room
Lot & Location: Subdivision
Exterior: Enclosed Porch, Fence
Porch & Patio: Porch, Screened