Huntsville 2-story, 3-bed 360 S Lakeside Drive-idx
Active

360 S Lakeside DriveHuntsville, 77320

$285,000
Listed 319 days

Home Summary

Charming stilt home with river access, perfect for outdoor adventures and relaxation.

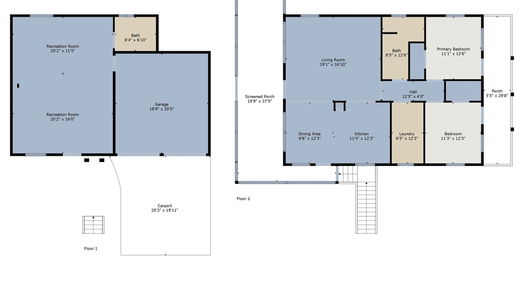
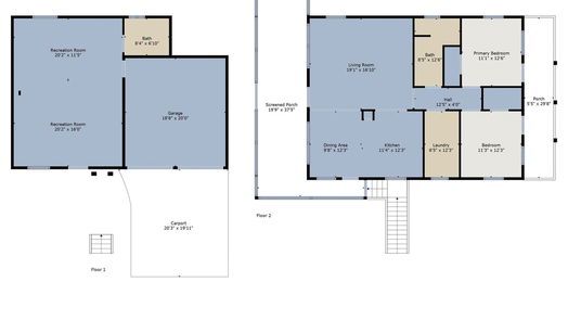
1,920 sqft
3 beds
2 baths
2-car
2-story
19,798 sqft lot
built in 1987

Property Type: Residential, Detached

Style: Other

Riverside Retreat: Your Ideal Home or Vacation Escape Nestled along the river, this charming two-story stilt home is perfect as a permanent residence or weekend getaway. With 3 bedrooms and 2 bathrooms, it offers both comfort and outdoor adventure. Step outside to the soothing sounds of birds and wildlife. With direct river access and a village boat ramp, you’re just moments away from fishing, kayaking, and boating. Whether it’s a quiet morning on the water or an afternoon exploring the river, this location provides a peaceful escape for nature enthusiasts. Inside, the open-concept living area is filled with natural light, making it a welcoming space for family and friends. Large windows bring the outdoors in, while three cozy bedrooms and two full baths offer plenty of room for everyone. The ground level beneath the stilted home provides flexible space for storage, a workshop, or even an outdoor lounge area. Perfect for keeping fishing gear, kayaks, or setting up a shaded spot.

2 down, 1 up

Living Room

Lot & Location: Corner Lot, Views, Waterfront

Waterfront: Waterfront

View: River, Water

MLS #358653774Listing Spark