Off Market

2520 Houston Avenue 809Houston, 77009

Home Summary

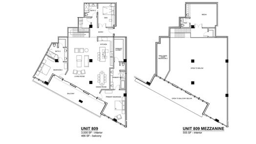
Brand-new Penthouse with custom finishes, stunning views, rooftop pool deck, and low HOA. Modern luxury in Woodland Heights.

3,555 sqft
2 beds
3.5 baths
built in 2023

Property Type: Residential, Condominium

Call for a private tour! Make this brand- new Penthouse your home, choosing custom finishes that will make it right for you. Rare opportunity to live in a perfect blend of historic near- town neighborhood alongside Houston’s hottest restaurants, bars, coffee shops, and green spaces. Stunning views of the Houston skyline and overlooking downtown. Modern luxury from the team that brought 1111 Studewood with a rooftop pool deck to include outdoor kitchen, firepits. Private lounge w/ catering kitchen, dining area, game tables. Located in Woodland Heights near Hike & Bike trail, minutes from 3 of top 15 business districts in the United States. Low HOA with amazing amenities like controlled building entry, covered visitor parking, 2 high speed elevators +freight elevator, dog wash facilities. Mixed-use conveniences include fitness/wellness center, rooftop venue, Each unit comes with 14’ ceilings,planning time with the project designer. The possibilities are endless!

Breakfast Bar, Open to Family Room

2 down

Den, Living Room

Exterior: Balcony, Storage

Porch & Patio: Deck, Rooftop, Terrace

View: Southern Exposure

MLS #280676989Compass RE Texas, LLC
Houston null-story, 2-bed 2520 Houston Avenue 809-idx